With a proven ability to take projects from concept to completion in record time, I designed, built, and installed a bookstore in just 6 weeks. Through efficient project management, meticulous attention to detail, and quick problem-solving, I delivered a fully functional and thoughtfully designed space that exceeded the client’s expectations.
Client Context
Christina, owner of All She Wrote Books, a feminist/queer independent bookstore in Somerville, MA, had just two weeks of downtime to move from their old storefront to the new one.
With a tight budget and timeline, I took full responsibility for executing her vision, efficiently managing communication, design approvals, and execution to ensure the new bookstore was ready for business on time.
“...an essential part of our work is encouraging meaningful conversations about race, gender, queerness, and more. We envision our store to be as much a gathering space as it is a place to find your next read.”
Moodboard
I began the design process by defining the materiality and style of the furniture pieces. The design prioritizes creating a sense of community, with a flexible, inviting area that encourages conversation and connection.
Natural plywood tones bring warmth into the space.
Simple rectilinear forms set a clean and simple backdrop for the merchandise.
Plexiglass accents add functional display space without adding visual clutter.
Thoughtful proportions are essential in making simplicity feel intentional.
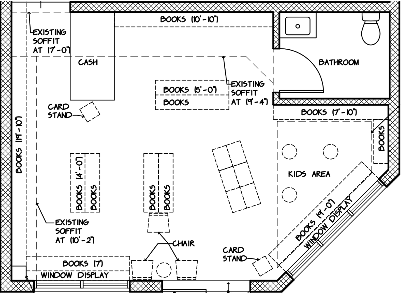
Optimization & ADA Compliance
I collaborated with architects to ensure ADA compliance and accessibility for all customers while optimizing every inch of usable space, defining the footprint of each piece.
To validate the flow and circulation of the proposed layout, I created a floor plan mockup using blue tape.
Designing for Efficiency
With only 5 weeks left and efficiency top of mind, I designing each piece to be built with expediency without sacrificing aesthetics and quality, setting the stage for a streamlined execution in the weeks ahead.
Flexibility of Space
The store needs to comfortably host guest speakers and other events. I incorporated casters on A, B, C & D, allowing them to push against the walls to create an open area for gathering.











Color Coded Cut List
With so many pieces to assemble, organization and attention to detail was crucial, setting myself up for an efficient and successful assembly.








Project Management
With the designs finalized, I moved on to sourcing and preparation. From the technical to the tactical - everything from the wood and sandpaper, to the U-haul and furniture dollies to transport and install - I sourced everything I would need to complete the design build. I had to ensure all of the materials would be there when I needed them, as the tight timelines left no room for delays.
Problem Solving
I live with a bias towards action and love to problem solve. As a designer first and a maker second, I didn’t have a conventional workshop. To execute the design build, I utilized a community woodshop for fabrication and rented a truck to transport materials.
Assembly
My background in making allows me to not only design well, but design to be built well with a natural understanding of how things are made. This hands-on approach allowed me to manage every detail, from sourcing quality materials to building and assembling the components to a high standard, maintaining quality and efficiency throughout the project.
Finishing
For the finishing process, I utilized a spray booth owned by a local finishing company, and a large Uhaul, for transit and to act as a drying booth. 14 pieces with 147 adjustable shelves were sprayed with poly, sanded, given a second coat of poly spray, and sanded again. By managing an efficient rotation with hired help, the meticulous finishing process was completed in less than a week.
Delivery & Installation
Every detail, from the layout to the furniture, was crafted to reflect Christina's belief that the bookstore is as much a gathering space as a place to find your next read. The final result is a space that fosters dialogue around race, gender, queerness, and more—offering a fresh start for the business and a meaningful, inclusive space for its community.